Elevate your local knowledge

Sign up for the iNFOnews newsletter today!

Select Region

Selecting your primary region ensures you get the stories that matter to you first.

Longboarders moving away from homes

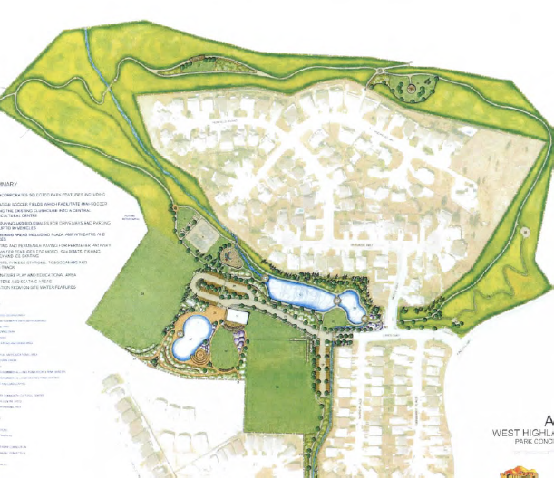
KAMLOOPS – A separate longboard training facility south of the planned location at West Highlands Park is in the works and members of the club are excited for the potential the new site brings.

A longboard facility was one of the top requests made following an open house last year, along with items like trees and landscaping, viewpoints, tennis courts, pond development and preservation of the toboggan hill.

Some neighbours and developers voiced concern over the proposed longboard trails and asked the city to consider moving the facility to just south of Pacific Way Elementary school and while members of the club were willing to fight for their right to have an off-street place to train they are very interested in the new proposed site, which offers a better grade and more room for different level trails.

The property south of the school is already zoned for parks and recreation use and has the necessary grades, it also offers easy access to a parking lot, buses and washroom facilities. Local developer DW Builders, one of the main groups to speak out against such a facility in West Highlands Park, supports the new proposed location.

“That site is right next door to established outdoor activities; such as the school playground, soccer field, and ball diamonds,” company vice president Mark Poulsen says in a letter to staff. “It can easily be meshed with these areas and become part of the outdoor experience while maintaining all this activity in a more concentrated area.”

Staff say the budget for West Highlands Park would still be sufficient to complete both the park and a separate longboarding training facility and are asking for council approval to work with the Kamloops Longboarding Club to construct a suitable facility at the new location.

Plans for the park continue to include two soccer fields, a multi-use path and the renovation of the clubhouse to a community centre. Construction of the fields was to be completed this year but drainage and groundwater concerns have caused delays. Installation of a drainage system is planned for this fall and final construction should be completed in 2014. The path is also under construction and should mostly be completed this year, with lighting to be completed in 2014. The plan will go to the public for feedback on what can be afforded within the budget.

Longboarders moving away from homes | iNFOnews.ca
Concept drawings for West Highlands Park include requests from the public open house last year. | Credit: City of Kamloops

To contact a reporter for this story, email jstahn@infotelnews.ca, call (250)819-3723 or tweet @JennStahn.

This story was last updated 8:49 a.m., Sept. 25, 2013.

News from © iNFOnews.ca, . All rights reserved.
This material may not be published, broadcast, rewritten or redistributed.

Join the Conversation!

Want to share your thoughts, add context, or connect with others in your community?

Jennifer Stahn